Aalscholverweg,
wonen in een
prachtige woning!

2 woningen Aalscholverweg

Aan de Aalscholverweg in Apeldoorn, op steenworp afstand van centrum en het station, worden 2 nieuwbouwwoningen ontwikkeld. De woningen liggen op een centrale locatie op circa 4 minuten afstand van de snelweg (A1).

We realiseren hier 2 twee-onder-een-kapwoningen vanaf € 519.500,- v.o.n.

Inschrijven

De inschrijving voor Aalscholverweg is gesloten en liep tot 18 april 2025 12.00 uur. Heeft u vragen over de inschrijving of wilt u nog meer weten over de woningen. Neem contact op met de makelaar.

Algemene stukken

Download via de buttons de algemene stukken, prijslijst en plattegronden van de woningen.

Heb je vragen? Neem dan contact op met de makelaar.

Nieuwbouw Centrum Apeldoorn
info@nieuwbouwcentrumapeldoorn.nl
055-5 777 107

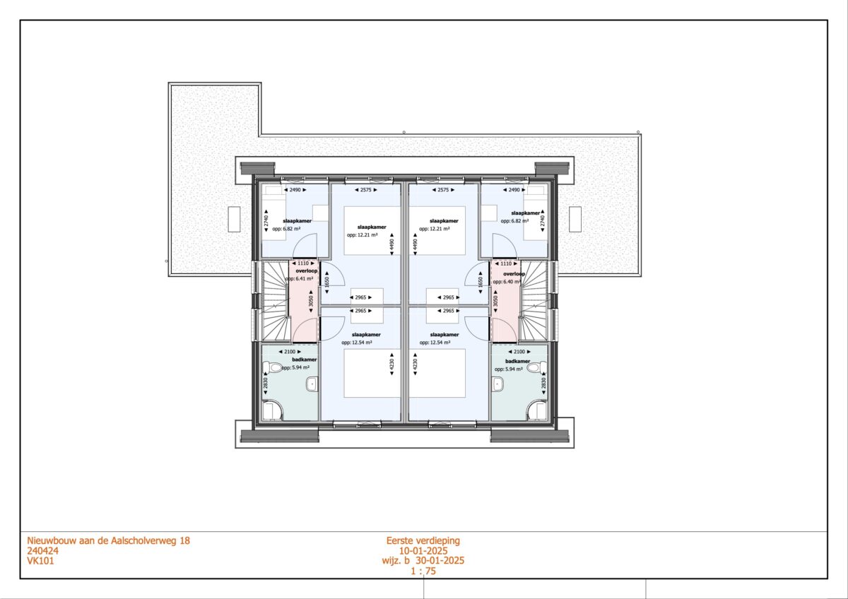
Plattegrond 2-onder-1-kap-woning

Begane grond

Begane grond + optie carport

1e verdieping

2e verdieping

2e verdieping met opties

Inschrijven?

Start bouw: binnen 3 maanden na onvoorwaardelijk worden koop- aanneemovereenkomst van beide woningen.
Oplevering: na ca. 200 werkbare dagen.

Heb je vragen over de inschrijving of over de woningen? Neem dan contact op via onderstaande gegevens.

Nieuwbouw Centrum Apeldoorn
Roggestraat 167 Apeldoorn
055 577 7107
info@nieuwbouwcentrumapeldoorn.nl

© 2026 Zoka Vastgoed | Algemene voorwaarden | Disclaimer | Privacy verklaring | Grafisch ontwerp Thumbs Up | Technische realisatie Sieronline B.V.